リフォームデータ
物件概要:戸建て
費用:550万円
工期:2週間
内容:キッチンリフォーム
キッチン:TOTO
トイレ:TOTO
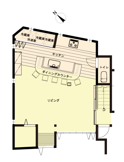
思い入れのあるカウンターを
そのまま活かしたキッチンリフォーム
二世帯住宅の1階部分で、以前は美容院だった空間を新たにLDKにしたいというご希望がありました。当時から使っているカウンターには思い入れもあり、今回のリフォームにあたり第一条件としてカウンターを活かせる設計を望まれました。

ビフォーアフター
施工前

施工後

リフォームポイント
POINT
長年お客様が大切にされていたカウンターを中心に据え、キッチンをプラニングしました。

リビングからキッチンを見ると斜めの形状が奥行きを引き立て、空間全体に広がりとゆとりを感じられます。お気に入りのカウンターが家族や友人が集う場のシンボルとして生まれ変わりました。

吹き抜けの階段には、LDKの空調効率を高めるため引き戸を設置。前面採光のデザインにより、明るさを損なわず解放感を感じられる空間になりました。

シンクとガスが分離型なので、用途の合わせてカウンターの高さを設定しました。

ダイニングカウンター下にはスライド式収納を設置。

ガス側右端の隙間は三角の奥行きになるため、片開き収納を加工して盆入れスペースにしました。


